The Global City hay còn gọi là khu đô thị Sài Gòn Bình An do Masterise Homes làm chủ đầu tư có quy mô 117ha phát triển các loại hình đất nền biệt thự, phố, khu căn hộ hạng sang, shophouse,… Dự án dự kiến sẽ ra mắt thị trường sau Tết Nguyên đán Nhâm Dần 2022. Đa dạng về sản phẩm, thiết kế thân thiện với môi trường và hài hòa cùng tổng thể, The Global City Thủ Đức hứa hẹn mang đến cho khách hàng một nơi an cư lý tưởng và đầu tư tiềm năng.
THÔNG TIN TỔNG QUAN
Tên dự án: The Global City
Vị trí: đường Đỗ Xuân Hợp, phường An Phú, TP Thủ Đức
Quy mô: 117ha
Chủ đầu tư: Masterise homes
Mật độ xây dựng: 30.5%
Loại hình xây dựng: Căn hộ hạng sang, Nhà phố, Shophouse, Villas.
Trong đó khoảng 1,800 sản phẩm thấp tầng và khoảng 10,000 sản phẩm cao tầng.
Thiết kế: Công ty của Anh (Foster and Partner)
Pháp lý: Người Việt sở hữu lâu dài. Người nước ngoài sở hữu 50 năm
Dự kiến bàn giao: Quý IV/2025
💥 Booking có hoàn lại: Từ nay đến hết 28/2/2022 💥
💥 Công bố giá Min-Max: Tuần 1 của Tháng 3/2022. 💥
Event chuyển cọc: Tuần 2 của Tháng 3/2022.
– Dự kiến ngày 31/3/2021: Hạn chót khách vào tiền 10% đầu tiên.
VỊ TRÍ
Vị trí dự án The Global City toạ lạc ngay đường Đỗ Xuân hợp, phường An Phú, TP Thủ Đức.
Sở hữu vị trí được đánh giá là đắc địa khi phía Tây giáp với khu đô thị Sài Gòn Sporrts City, phía Nam tiếp giáp với đường cao tốc TP HCM – Long Thành – Dầu Giây và khu tái định cư 15ha. Phía bắc giáp với khu đô thị The Virus Saigon, giáp sông Rạch Chiếc.
Từ vị trí này, cư dân dễ dàng kết nối với các khu vực lân cận.
– 4 phút lái xe để đến trung tâm thành phố Thủ Đức.
– Bán kính 3km là Khu công nghệ cao Samsung.
– Lái xe 10 phút để đến Quận 1 thông qua đường Song Hành hoặc tuyến cao tốc.
– Đến trung tâm quận 7 mất khoảng 15 phút.
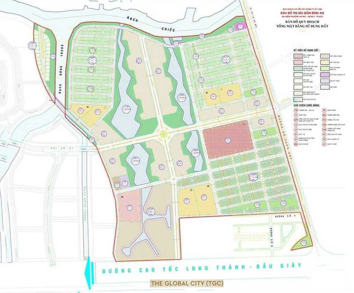
MẶT BẰNG
The Global City Thủ Đức được quy hoạch trên tổng diện tích 117 ha. Được chia làm hai phân khu trong đó:
🔸 Khu nhà ở diện tích 22ha với 193 căn biệt thự, nhà liên kế sân vườn và 40 Tháp chung cư với 13,200 căn hộ cao cấp, 80 căn penthouse.
🔸 Khu liên hợp sân golf rộng 92ha gồm khu sân golf 18 lỗ, khu nghĩ dưỡng & khu khách sạn 400 phòng.
Đất công viên cây xanh và mặt nước rộng hơn 21.7 hecta.
Đất dành cho bệnh viện rộng khoảng 2ha – chủ đầu tư sẽ xây dựng xong và bàn giao lại cho UNBD thành phố Thủ Đức.
Đất thương mại dịch vụ rộng 4.1 ha – đất thuê 50 năm trả tiền hàng năm kể từ 2017.
Đất dành cho giáo dục (từ mầm non tới trung học phổ thông) rộng 4.8 ha.
TIỆN ÍCH
Tiện ích Dự án Căn hộ The Global City Thủ Đức nổi bật trong khu vực với sân golf 18 lỗ chuẩn quốc tế và quy mô bề thế lên đến 92ha. Đây dự kiến sẽ là một trong những sân golf thể thao đẳng cấp nhất TP. Thủ Đức cũng như TP.HCM và là nơi quy tụ những sự kiện, giải đấu chuyên nghiệp tầm cỡ khu vực.
Tích hợp trong nội khu của vùng đô thị hạt nhân là tổ hợp đầy đủ các tiện ích không chỉ phục vụ toàn diện nhu cầu sinh hoạt của cư dân mà còn mở rộng, nâng tầm chất lượng trải nghiệm lên mức du lịch, nghỉ dưỡng.
Tiện ích nội khu của dự án The Global City bao gồm:
– Trung tâm thương mại, siêu thị, quán ăn, cà phê ngoài trời.
– Hồ bơi tràn bờ bốn mùa, hồ sinh thái trong xanh.
– Khu liên hợp sân Golf 18 lỗ và khu thể dục thể thao.
– Khu vui chơi trẻ em với đa dạng loại hình trò chơi, khu tập thể dục cho người già.
– Đường đi bộ, công viên xanh và vườn hoa cùng nhiều hàng ghế đá.
– Phòng tập gym, yoga, massage hiện đại.
– Địa điểm cắm trại, nướng BBQ ven sông, dịch vụ thuê du thuyền cao cấp.
Bên cạnh đó, dự án sở hữu bến du thuyền ngay mặt tiền sông Rạch Chiếc, trung tâm thương mại với hàng trăm thương hiệu mua sắm dịch vụ sang trọng, sầm uất, công viên cảnh quan, hồ bơi, khu vực tập luyện thể thao, GYM, Spa, Yoga, tiệc nướng ngoài trời BBQ,…
Dự án The Global City còn giúp cư dân dễ dàng kết nối và tiếp cận đến các tiện ích ngoại khu có sẵn khác như trường Quốc tế ACG, trường Quốc tế Sài Gòn Star, Bệnh viện Đa khoa Quận 2, chợ Thanh Mỹ Lợi, chợ Cát Lái, chợ Cây Xoài, siêu thị Vinatex, siêu thị Metro, Big C, TTTM Parkson,…
Ngoài ra, The Global City Thủ Đức còn hưởng lợi từ tiện ích nội khu hiện đại của các khu đô thị liền kề như Saigon Sport City, Villa Park, khu đô thị Cát Lái (Kiến Á),…
THIẾT KẾ
Thiết kế The Global City được chủ đầu tư chú trọng trong việc khai thác và sử dụng tối đa các diện tích, đảm bảo khách hàng sẽ được sống trong một không gian thoải mái và tuyệt vời nhất.
Thiết kế mặt ngoài công nghệ năng lượng mặt trời ngăn chặn hơi nóng vào bên trong tuy nhiên vẫn đảm bảo đón đủ nắng và gió.
Đối với nhà phố thì sẽ có các mẫu nhà gồm nhà liên kế có sân vườn và nhà liên kế vườn, về căn hộ cao tầng có tên thương mại là The Global City Elie Saab (căn hộ Elie Saab) có thiết kế từ 1 – 5 phòng ngủ, bao gồm các căn Duplex và Penthouse sang trọng nhất của dự án.
Khu nhà ở 22 ha sẽ bao gồm: khu nhà phố khoảng 200 căn, thiết kế 4 tầng, diện tích từ 120 – 220 m2; khu nhà ở chung cư cao tầng dự kiến có 20 tháp, quy mô hơn 10.000 căn hộ từ 1 – 4 phòng ngủ: căn hộ 1 phòng ngủ diện tích từ 46 – 51 m2, căn hộ 2 ngủ 1 toilet diện tích từ 60 – 68 m2, căn hộ 2 ngủ 2 toilet diện tích từ 70 – 72 m2, căn hộ 3 ngủ diện tích từ 82 – 90 m2, căn hộ duplex diện tích từ 92 – 142 m2.
BẢNG GIÁ
Giá bán The Global City dự kiến:
– Căn hộ: từ 4,000 USD/m2
– Nhà phố, Biệt thự: từ 14,000 USD/m2
Để biết thêm thông tin về bảng giá và cập nhật những thông tin về giá bán dự án, quý anh chị khách hàng vui lòng liên hệ hotline 0909.477.288 – 079.679.6789
THANH TOÁN
Tiến độ thanh toán dự án The Global City được chia thành nhiều đợt thanh toán, ngân hàng hỗ trợ vay đến 60% giá trị sản phẩm.
Ngoài ra, khách hàng còn được hưởng nhiều chính sách chiết khấu cực kì hấp dẫn khi thanh toán sớm, đồng thời còn có nhiều quà tặng đặc biệt cho những khách hàng đầu tiên,…
CHỦ ĐẦU TƯ
Chủ đầu tư dự án The Global City là Masterise Homes thuộc tập đoàn Masterise Group với nhiều năm kinh nghiệm trong việc phát triển bất động sản, tiên phong áp dụng các chuẩn mực toàn cầu vào việc phát triển, vận hành và quản lý các sản phẩm, dịch vụ bất động sản tại Việt Nam và thế giới.
LIÊN HỆ
Hotline: 0909.477.288 – 079.679.6789







